[ページのナビゲーション]
[コンテンツエリア]
ビオトープづくり
様々な動植物を目にすることが出来る自然のビオトープは、私達にとって魅力的なものです。 都会に住む多くの人が、余暇を使って山や川のを目指して出かけるのはそのためではないでしょうか。弊社は、洗練された水のコントロール技術を活用して安らぎと学びの場としての水辺のあるビオトープを創出・保全いたします。
ビオトープ設計のお手伝いをします。
弊社では一般のお客様向けはもちろんのこと、専門の設計業者様へのビオトープ設計のお手伝いもさせて頂いております。予めご提示いただいた写真や図面を元に、CADによる設計と作図のお手伝いをいたします。
CASBEEや緑化基準に準する設計もお手伝いさせていただきます。
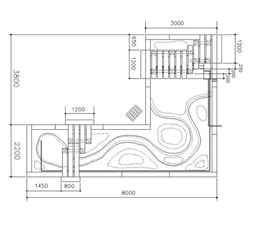
屋上ビオトープとは
屋上とうのは物理的な側面から見れば「乾燥した砂漠」と同じですから、ビオトープを設置するのには水をコントロールする技術を必要とします。弊社は雨水タンク、太陽光発電、水中ポンプを活用した水辺のあるビオトープを屋上に設置いたします。
水辺のリフォーム&メンテナンス
水辺の環境というのは、堆積物や植物群落の遷移によって比較的短時間のうちに変化してしまうものです。したがって生物相の豊かでな良好な環境を保つためには、定期的な浚渫や植生管理を実施しなければなりませんが、 それには生物の専門知識が必要になります。
弊社はビオトープをはじめ、河川、池、沼、湿地などの水環境のリフォーム並びに植生管理や浚渫を含むメンテナンスを承ります。
「田んぼとーぷ」をご提案いたします。
「田んぼとーぷ」は弊社が提案する「水田ビオトープ」です。壁面緑化ならびに屋上ビオトープの事業で養った技術を使用し、電力を使わずに「自動調水」できるビオトープのセットです。
田植えや稲刈り、小さな生き物たちの観察など、昔の里山にあった楽しい田んぼの世界を再現できます。





